FLAT-2 ГАРАЖ
Новорижское
По запросу
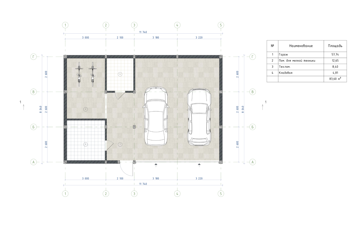
В данном гараже находится хозблок и тех-помещение с котельной основного дома по проекту ART 5.
94 м2
Общая площадь
94 м2
Теплый контур
1
этаж
Архитектура.
Инновационные решения на базе вековых традиций
Отделка.
Инновационные решения на базе вековых традиций
Стоимость дома.
Стоимость гаража расчитывается индивидуально в зависимости от комплектации
94 м2
Общая площадь
94 м2
Теплый контур
1
этаж
Стоимость внешней отделки и отделки фасада рассчитываются отдельно
Фундамент.
Геодезические работы: разбивка осей, нивелировка,
привязка строения на участке
Снятие почвенно-растительного слоя в пятне строительства
глубиной 0,3 м
Укладка геотекстильной ткани на основание
котлована
Песчаная подготовка под плитный фундамент толщиной 0,2
Устройство подбетонки М200 по песчаной подготовке
Устройство рулонной гидроизоляции в 1 слой
Устройство опалубки и арматурных каркасов
фундамента
Приёмка сертифицированной бетонной смеси М300 с
вибрированием на фундаменте
Армирование ж/б 12мм арматурой в два слоя
Геодезические работы: разбивка осей, нивелировка,
привязка строения на участке
Монтаж свай специализированной роботизированной
установкой
Размер сваи 200ммх200ммх3000м
Монтаж металлических оголовок
Покраска металлических оголовок
Портфолио.
Проекты.
Обзоры.
Обзор строящегося дома в стиле шале
Мы рады представить вам наш новый проект — дом в стиле шале, который строится прямо на овраге, в живописном месте у реки. Это уникальное место, где природа и комфорт сливаются воедино.
Проект в стиле шале сочетает в себе элементы традиционного горного архитектурного стиля с современными технологиями и материалами, что делает дом не только красивым, но и уютным для круглогодичного проживания.
Благодаря расположению на овраге, из каждого окна открывается потрясающий вид на реку и лес, создавая атмосферу уединения и спокойствия. Внутри — просторные помещения с высокими потолками, натуральные материалы и продуманная планировка, которая гармонично вписывается в природу.
Мы заботимся о каждой детали, чтобы ваш будущий дом стал идеальным местом для отдыха и жизни. Смотрите, как мы строим, и следите за процессом!
Wings — это переосмысление привычной архитектуры фахверка.
Мы взяли классический дом с разрывной крышей и развернули её в противоположную сторону. Казалось бы — простой жест. Но именно он полностью изменил характер дома.
Разворот крыши создал эффект «крыльев» — динамичную линию, устремлённую в сторону участка и природы.
Дом перестал быть статичным объёмом. Он словно раскрывается, реагирует на окружение, вступает в диалог с ландшафтом.
Этот приём дал не только выразительную форму, но и инженерные преимущества.
За счёт разворота кровли мы избавились от привычных желобов по периметру крыши.
Фасады стали чище, архитектура — строже. Никаких визуальных «швов» и лишних линий, которые дробят объём.
Вода уводится конструктивно и аккуратно, без навесных решений, нарушающих эстетику.
В проекте применено структурное остекление поверх опорно-балочной системы фахверка.
Стекло не вставлено «между элементами» — оно формирует цельную, почти зеркальную плоскость.
В результате:
фасад выглядит монолитным,
конструкция остаётся читаемой изнутри,
свет проникает глубоко в интерьер.
Главный эффект проекта — отражение леса в стеклянной поверхности.
Фасад становится живым.
В нём меняется свет, движение облаков, сезонные краски деревьев. Летом — глубокая зелень, осенью — золото и огонь листвы, зимой — графика стволов.
Дом не конкурирует с природой. Он её отражает.
Это проект о смелости менять привычную форму.
О том, как один архитектурный разворот может создать новый образ, новую динамику и новое ощущение пространства.
Wings — это фахверк, который расправил крылья.
Контакты.