Falcon

Проект Falcon

Этот элегантный проект впечатляет своим масштабом и выразительной архитектурой. Главной особенностью дома является просторная зона второго света с высотой потолка более 8 метров, благодаря чему интерьер наполняется воздухом, светом и ощущением настоящего объёма.

Falcon сочетает современную архитектуру, панорамное остекление и продуманную планировку, создавая комфортное и эффектное пространство для жизни.

  • 485 м2

    Общая площадь

  • 560 м2

    Теплый контур

  • 1

    этаж

  • 6

    комнат

  • 5

    спален

  • 4

    санузла

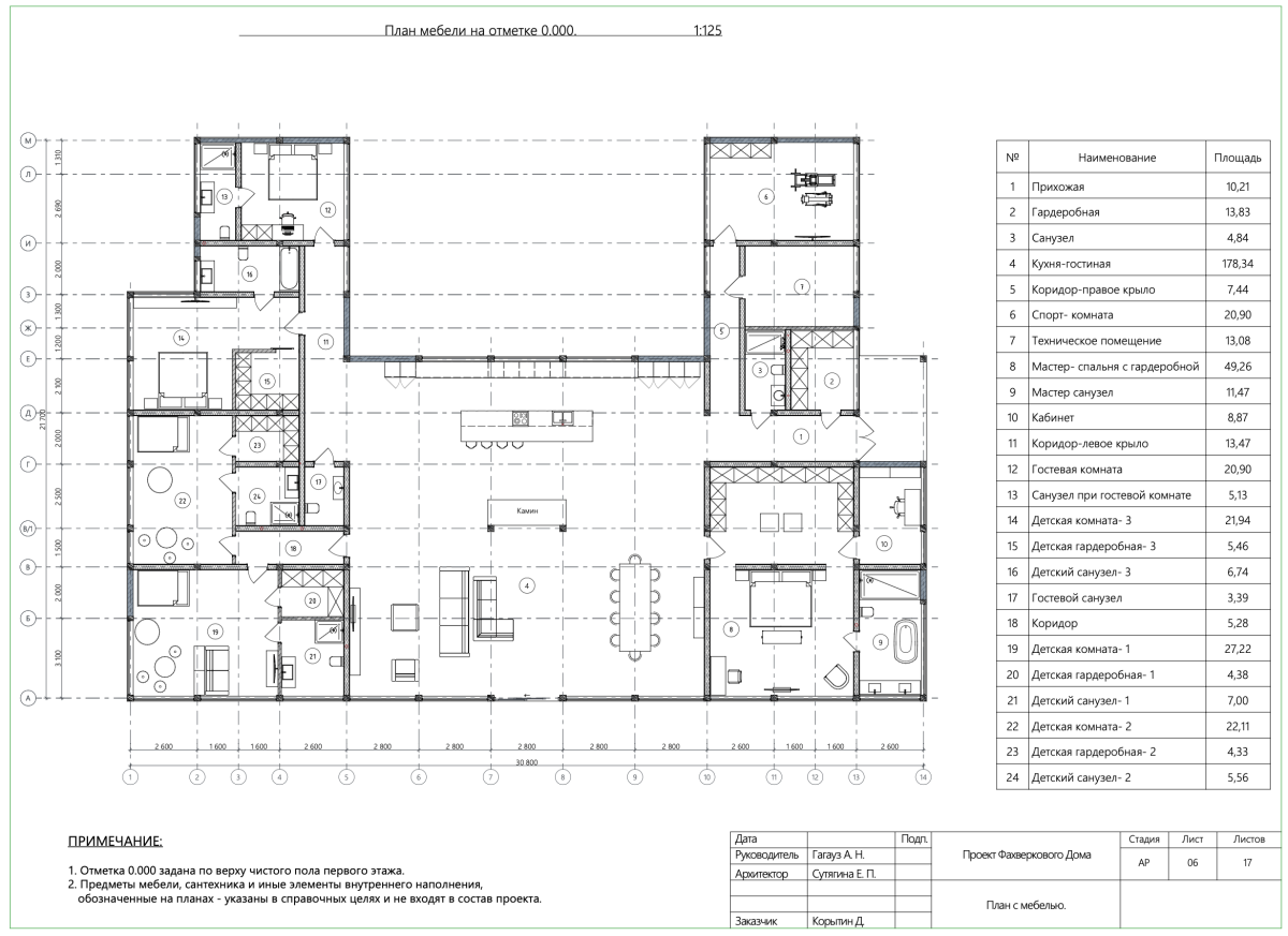
Планировка.

Вариант планировки

Дом в базовой комплектации собирается в свободной планировке. Вы можете реализовать индивидуальное планировочное решение.

Архитектура.

Архитектура проекта

Инновационные решения на базе вековых традиций

Покажем наши самые интересные решения!

Мы с радостью проконсультируем вас по проекту и покажем наши самые интересные решения!

Отделка.

Примеры внутренней отделки

Инновационные решения на базе вековых традиций

Стоимость дома.

Что входит в тёплый контур

Стоимость по запросу

Стоимость дома расчитывается в зависимости от выбранной отделки и даты запроса.

  • Стоимость дома
  • 485 м2

    Общая площадь

  • 560 м2

    Теплый контур

  • 1

    этаж

  • 6

    комнат

  • 5

    спален

  • 4

    санузла

Стоимость внешней отделки и отделки фасада рассчитываются отдельно

Фундамент.

Фундамент на выбор

Монолитная плита

Геодезические работы: разбивка осей, нивелировка, привязка строения на участке
Снятие почвенно-растительного слоя в пятне строительства глубиной 0,3 м
Укладка геотекстильной ткани на основание котлована
Песчаная подготовка под плитный фундамент толщиной 0,2 Устройство подбетонки М200 по песчаной подготовке
Устройство рулонной гидроизоляции в 1 слой
Устройство опалубки и арматурных каркасов фундамента
Приёмка сертифицированной бетонной смеси М300 с вибрированием на фундаменте
Армирование ж/б 12мм арматурой в два слоя

Железобетонные сваи

Геодезические работы: разбивка осей, нивелировка, привязка строения на участке
Монтаж свай специализированной роботизированной установкой
Размер сваи 200ммх200ммх3000м
Монтаж металлических оголовок
Покраска металлических оголовок

Портфолио.

Гордимся тем что уже сделали

Все портфолио
  • Wings 250

    Архангельское

    По запросу

    250 м2

    10 дней

  • Wings 170

    Хабаровск

    По запросу

    170 м2

    40 дней

Проекты.

Другие проекты Эксклюзивные проекты

  • Grunewald

    Grunewald

    Добавить в избранное
    • 2 этажный дом
    • 100 дней на монтаж
    • 440 м2 теплый контур
    • 510 м2

      Общая площадь

    • По запросу

      Цена сборки

    Перейти
    Подробнее
  • Wings 250

    Wings 250

    Добавить в избранное
    • 1 этажный дом
    • 120 дней на монтаж
    • 250 м2 теплый контур
    • 250 м2

      Общая площадь

    • По запросу

      Цена сборки

    Перейти
    Подробнее
  • Wings 170

    Wings 170

    Добавить в избранное
    • 1 этажный дом
    • 45 дней на монтаж
    • 170 м2 теплый контур
    • 170 м2

      Общая площадь

    • По запросу

      Цена сборки

    Перейти
    Подробнее
  • Rachmaninov

    Rachmaninov

    Добавить в избранное
    • 2 этажный дом
    • 140 дней на монтаж
    • 440 м2 теплый контур
    • 620 м2

      Общая площадь

    • По запросу

      Цена сборки

    Перейти
    Подробнее
Добавить в избранное

Видеоблог AndySpark

Следите за нами
как мы работаем

Перейти ко всем видео

Обзоры.

О нас говорят наши довольные клиенты

Все обзоры

Контакты.

Рады гостям Приезжайте
к нам в офис

  • Москва
  • Санкт - Петербург
Построить маршрут