Riga 300
Новая Рига 1
По запросу
300 м2
70 дней
Обновленный проект Vision
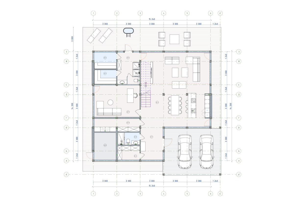
370 м2
Общая площадь
330 м2
Теплый контур
2
этажа
6
комнат
4
спальни
4
санузла
Архитектура.
Инновационные решения на базе вековых традиций
Отделка.
Инновационные решения на базе вековых традиций
Стоимость дома.
Стоимость дома расчитывается индивидуально на дату запроса.
370 м2
Общая площадь
330 м2
Теплый контур
2
этажа
6
комнат
4
спальни
4
санузла
Стоимость внешней отделки и отделки фасада рассчитываются отдельно
Фундамент.
Геодезические работы: разбивка осей, нивелировка,
привязка строения на участке
Снятие почвенно-растительного слоя в пятне строительства
глубиной 0,3 м
Укладка геотекстильной ткани на основание
котлована
Песчаная подготовка под плитный фундамент толщиной 0,2
Устройство подбетонки М200 по песчаной подготовке
Устройство рулонной гидроизоляции в 1 слой
Устройство опалубки и арматурных каркасов
фундамента
Приёмка сертифицированной бетонной смеси М300 с
вибрированием на фундаменте
Армирование ж/б 12мм арматурой в два слоя
Геодезические работы: разбивка осей, нивелировка,
привязка строения на участке
Монтаж свай специализированной роботизированной
установкой
Размер сваи 200ммх200ммх3000м
Монтаж металлических оголовок
Покраска металлических оголовок
Портфолио.
Проекты.
Обзоры.
Обзор строящегося дома в стиле шале
Мы рады представить вам наш новый проект — дом в стиле шале, который строится прямо на овраге, в живописном месте у реки. Это уникальное место, где природа и комфорт сливаются воедино.
Проект в стиле шале сочетает в себе элементы традиционного горного архитектурного стиля с современными технологиями и материалами, что делает дом не только красивым, но и уютным для круглогодичного проживания.
Благодаря расположению на овраге, из каждого окна открывается потрясающий вид на реку и лес, создавая атмосферу уединения и спокойствия. Внутри — просторные помещения с высокими потолками, натуральные материалы и продуманная планировка, которая гармонично вписывается в природу.
Мы заботимся о каждой детали, чтобы ваш будущий дом стал идеальным местом для отдыха и жизни. Смотрите, как мы строим, и следите за процессом!
Wings — это переосмысление привычной архитектуры фахверка.
Мы взяли классический дом с разрывной крышей и развернули её в противоположную сторону. Казалось бы — простой жест. Но именно он полностью изменил характер дома.
Разворот крыши создал эффект «крыльев» — динамичную линию, устремлённую в сторону участка и природы.
Дом перестал быть статичным объёмом. Он словно раскрывается, реагирует на окружение, вступает в диалог с ландшафтом.
Этот приём дал не только выразительную форму, но и инженерные преимущества.
За счёт разворота кровли мы избавились от привычных желобов по периметру крыши.
Фасады стали чище, архитектура — строже. Никаких визуальных «швов» и лишних линий, которые дробят объём.
Вода уводится конструктивно и аккуратно, без навесных решений, нарушающих эстетику.
В проекте применено структурное остекление поверх опорно-балочной системы фахверка.
Стекло не вставлено «между элементами» — оно формирует цельную, почти зеркальную плоскость.
В результате:
фасад выглядит монолитным,
конструкция остаётся читаемой изнутри,
свет проникает глубоко в интерьер.
Главный эффект проекта — отражение леса в стеклянной поверхности.
Фасад становится живым.
В нём меняется свет, движение облаков, сезонные краски деревьев. Летом — глубокая зелень, осенью — золото и огонь листвы, зимой — графика стволов.
Дом не конкурирует с природой. Он её отражает.
Это проект о смелости менять привычную форму.
О том, как один архитектурный разворот может создать новый образ, новую динамику и новое ощущение пространства.
Wings — это фахверк, который расправил крылья.
Контакты.